新闻资讯

基站开关电源柜一、二次下电配置指导书

时间:2017-09-19 10:25 阅读:793 来源:互联网

1 基站供电系统结构概述


基站供电系统主要由交流供电系统和直流供电系统组成。


交流供电系统运行方式:

(1)市电正常时,由市电供电;

(2)市电停电后,移动油机未到站时,站内通信设备由蓄电池放电供电;

(3)移动油机到站,待油机启动后,由油机供电;

(4)市电恢复后,由市电供电。


直流供电系统的运行方式:

在线恒压充电的全浮充供电方式。

(1)当交流电源正常时,由整流器和蓄电池并联浮充供电(整流器一方面给通信设备,一方面又给蓄电池充电,以补充蓄电池因自放电而失去的电量);

(2)当交流电源中断后,由蓄电池单独向通信设备供电;

(3)当交流电源恢复供电时,开关电源的监控模块自动启动整流器向通信负荷供电,并对蓄电池进行充电。


蓄电池组既为备用电源,又可以吸收高频纹波电流。


2 开关电源柜硬件配置概述


当前基站中常见的电源柜厂家有艾默生、中兴、中达、华为、北京动力源等,其中艾默生的占比最大,以下以艾默生电源柜做示例。


2.1 开关电源柜功能架构


(1)逻辑架构


高频开关组合电源由交流配电单元、直流配电单元、整流模块、监控模块组成。



交流配电单元:输入市电或油机电源,将交流电能分配给开关电源整流模块使用;含有浪涌保护器,作为基站电源系统的第二级防雷保护。


直流配电单元:通过直流汇流母排,将开关电源整流模块输出的直流电能提供给通信设备用电,并对电池进行充电。


整流模块:从交流配电取得交流电能,将交流电整流成直流电,输出到直流母排。监控模块:实时监测和控制电源系统各部分工作,对电池进行自 动管理,具有标准的RS232或 RS485通信口,作为后台监控的接口。


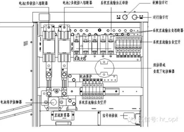
(2)开关电源柜现场图




2.2 交流配电单元



交流配电介绍



2.3 直流配电单元


直流配电回路有一次下电、二次下电之分。


一次下电负载:基站设备(如GBTS、NODEB等)接在一次下电回路;

二次下电负载:传输设备(如Metro500、PTN950等)、监控设备(中兴、高新兴等动环设备)接在二次下电回路。


(1)直流配电单元平面图



(2)直流配电单元实物图


如下图,基站电源-48V应该接到一次下电熔丝接口上,熔丝工作电流应为63A,“工作地”应该接到电源柜统一接口。


2.4 整流模块及监控模块





整流模块型号解析:


监控模块型号解析:


2.5 蓄电池


基站电池通常由两组电池并联供电,部分基站是一组电池供电,每组电池由24只2V单体电池串联组成。


蓄电池浮充、均充


●浮充充电应解决的两个问题:


1. 补偿电池因自放电而产生的容量损失

2. 避免过充造成电池寿命的缩短


●浮充电压一般在2.23~2.28V/只范围内选定(温度为25℃时 )

●均衡充电电压 2.30~2.35V/只

●整流设备应能浮充/均充方式的自动转换。


蓄电池放电后,整流设备自动向蓄电池进行均充电,当充电电流小于每安时50mA或充入电量是放出电量的1.2倍时,均充自动转为浮充。


电池的不均衡性:多节串联的电池在运行过程 中有时会发生容量、端压不一致的情况,通常采用均充的方法来解决。


3 电源柜一、二次下电设置操作指引


3.1 电源柜一、二次下电概述


基站交流电停电后,为最大化维持业务和保护电池,电源柜直流配电回路有一次下电、二次下电之分,根据设备业务重要程度,实现电池差别化供电,同时保护电池。


一次下电负载:基站主设备(如GBTS、NODEB);


二次下电负载:传输设备(如Metro500、PTN950等)、监控设备(中兴、高新兴等动环设备);


(1)电源柜一、二次下电过程


基站电源一、二次下电示意图


移动基站中,三相或单相(市电)交流电引入开关电源后,经过整流,输出-48伏直流电源供通讯设备使用,同时对蓄电池组进行浮充、均充操作。


一次下电过程:当交流停电,整流模块无直流输出时,电池开始放电,电压持续下降至一次下电门限值(44.0V/22V,可调)时,电源柜一次下电接触器将断开,接在一次下电电源支路上的设备将被切断电源供应。此时接在二次下电电源支路上的设备仍正常供电;


二次下电过程:随着电池放电的进程继续,如果电池放电至二次下电门限值(43.2V/21.6V,可调),电源柜二次下电接触器将断开,电池放电进程终止,所有通信负载的供电都被中止,从而可避免电池因过放电而损害。


恢复过程:当交流来电且整流模块输出正常后,负载下电和电池保护接触器自动闭合,系统恢复正常工作。


一次、二次下电电压的设置都是在开关电源上,具体参数根据电池组容量,电池组工作年限,负载功耗等参数设置。


不同厂家不同型号的监控模块参数配置不同,为贴近现场实际,以下将选择现网中常见的艾默生PAM-X系列监控模块和中兴ZXDU68监控模块作为操作示例。


(2)基站动力日常维护常用参数


开关电源日常维护经常使用的一些参数列表,以供参考,具体设置时参照电池操作使用说明书。



3.2 开关电源一、二次下电设置(艾默生)


(1)监控模块操作面板


图 监控面板PAM-A、PSM-A2、PSM-A7、PSM-A9、PSM-A11


(2)艾默生开关电源型号、密码


常见开关电源对应的监控模块、整流模块、监控操作密码一览表



(3)监控模块一、二次下电设置步骤



3.3 开关电源一、二次下电设置(中兴ZXDU68)


(1)监控单元外形图


中兴ZXDU68监控单元操作面板


按键功能:



(2)电源一、二次下电设置步骤



设置要求:一次下电电 压值≤电池欠压值


中兴ZXDU68一次下电电压默认值为46.0 V,二次下电电压默认值为45.0 V。


服务热线

13896063375

微信扫一扫,快速沟通